Exclusive penthouse for sale in Pere Garau with 74.87 m² of interior space and a magnificent 45.89 m² terrace.
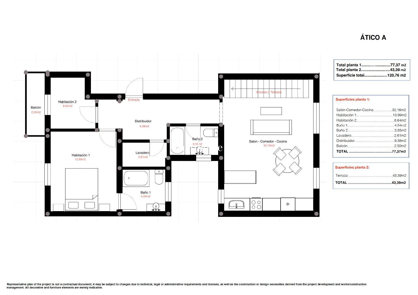
Inside, the property features a master bedroom of 13.99 m² and an additional space of 8.64 m², ideal for use as a walk-in closet, office, or other purposes as needed. It offers two bathrooms, one en suite of 4.54 m² and another of 3.55 m², as well as a laundry room of 2.61 m². The open-plan living-dining area with a fully equipped kitchen provides a bright and spacious surface of 32.16 m². The hallway, measuring 9.38 m², connects the different rooms harmoniously.
Outdoors, the property boasts a balcony of 2.50 m² and a large terrace of 43.39 m², providing an ideal setting to enjoy outdoor living throughout the year.
Extras: independent hot/cold air conditioning, aluminum windows with double glazing, and an elevator in the building.
Pere Garau is a neighborhood with a unique character in Palma, combining tradition and modernity in a vibrant atmosphere. Its iconic market is a gastronomic landmark where local products blend with international influences, reflecting the cosmopolitan spirit of the area. Thanks to its excellent location, just minutes from the historic center and with convenient transport connections, Pere Garau has become one of the city’s most dynamic areas. It offers a wide variety of services, shops, schools, and restaurants, ensuring a practical and pleasant lifestyle. In recent years, the neighborhood has undergone a process of transformation and revaluation, becoming a point of interest both for those seeking an authentic place to live and for investors looking for an area with great potential.
We recommend hiring a specialized lawyer to verify the legal status of the construction. The information provided is provided by third parties, is for information purposes only and is assumed to be correct. Smart Home Mallorca does not guarantee their accuracy. The offer is subject to errors, price changes, omission and/or withdrawal from the market without prior notice. Availability to be agreed upon. The information given here is presumed to be true, although Smart Home Mallorca cannot be held responsible for its accuracy. We therefore recommend that you hire a specialist lawyer to check the legal situation of the property. The offer is subject to errors, price changes, omission and/or withdrawal from the market without prior notice. The notary, taxes and registration fees are payable by the buyer in accordance with Spanish law. The estate agent's fees will be paid by the seller. In case of renting, the tenant is responsible for the agency fees. The prices mentioned here exclude any applicable taxes or charges.
We recommend hiring a specialized lawyer to verify the legal status of the construction.
Luxurious penthouse for sale in a building from the early 20th century with only 4 flats, completely refurbished to the highest level in terms of finishings and equipment. It is located in the historic center of the city. The properties outstand for their brightness, comfort, and exquisite qualities, meeting the most demanding tastes.
It counts with 309 m2 distributed in 4 bedrooms, 4 bathrooms (2 of them en suite), a fully equipped open-plan kitchen, and a terrace on the same level of the living room of 15 m², and the second one of 22 m² is located on the solarium.
Extra: Built-in cabinets. Kitchen with cement countertop, Miele hood + induction hob + recirculation filter, fridge, freezer, dishwasher, and Miele oven. Bathrooms with Mortex finish, and stone sinks. Catalano WC and bidet. Quadro faucet. Air conditioning h/c.
THE AREA: CASCO ANTIGUO is one of the 5 districts which form Palma city and contains 13 of the 89 neighborhoods of the city. It is bordered by Avenidas, located where the city walls used to be. It borders the West District on the West, the East District on the East, the North District on the North and the Mediterranean Sea on the South. It is characterized by its numerous interlaced narrow streets, squares and ancient buildings, creating a magical atmosphere and forming an architectural landscape that reflects the living history of the city. Most of the historical buildings built between the 15th and 18th centuries are located in this district, with its legendary palace courtyards of majestic beauty. It is a lively area, full of refined restaurants, shops, museums, art galleries and endless of services to please both its visitors and its inhabitants. The reduced perimeter and the high demand of properties, makes it the highest priced real estate (per square meter) on the whole island. The different areas of the old town: Sa Calatrava, Cort, Jaume III, La Lonja-Borne, Mercat, La Missió, Monti-sion, Plaça dels Patins, Puig de Sant Pere, Sant Jaume, Sant Nicolau, La Seu and Sindicat.
Exclusive luxury apartment for sale in a building dating from the beginning of the 20th century with only four units, refurbished to the highest level regarding finishings and equipment. It is located in the historic center of the city. The properties outstand for their brightness, comfort, and exquisite qualities, meeting the most demanding tastes.